본문
캐드소스 > 테마 > 건축물 분류
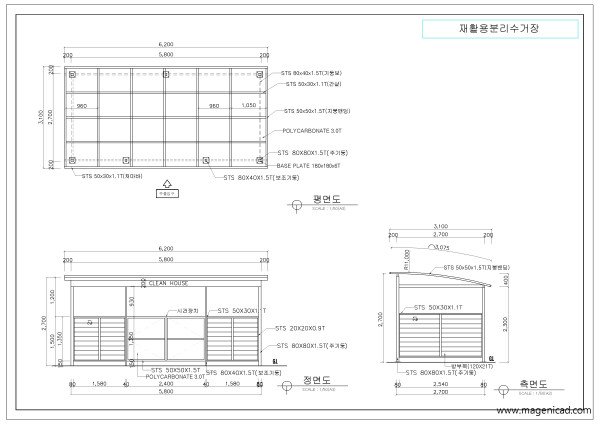
재활용장 캐노피 캐드도면 te-ar-재활용장캐노피


다운로드/Downlode
관련자료
-
다운로드시 300 포인트 차감 (10일 동안 다운로드 이력 유지)다운로드하시고 꼭 댓글부탁드립니다^^등록일 2025.09.11 22:33
관련자료
-
이전
-
다음