본문
캐드프로젝트 > 판매공간 > 편의점 분류
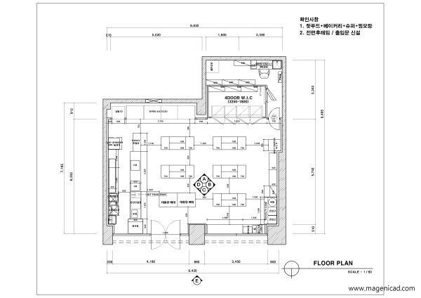
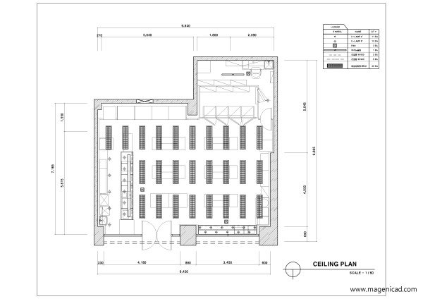
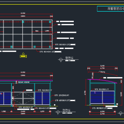
17평형 편의점 평면도/천정도/입면도 cp-s-g001 17평 편의점



다운로드/Downlode
관련자료
-
다운로드시 6000 포인트 차감 (10일 동안 다운로드 이력 유지)다운로드하시고 꼭 댓글부탁드립니다^^등록일 2025.09.13 22:43
관련자료
-
이전
-
다음